Quantité
Total
Dont d' éco-part. DEEE
Il y a 0 produits dans votre panier. Il y a 1 produit dans votre panier.
Total produits
Frais de port  À définir
Total
Continuer mes achats Commander
Vos produits 0 produit

Total

Sous-total de la commande
0
00
Livraison
0
00
Total
0
00
Dont d' éco-part. DEEE
COMMANDER

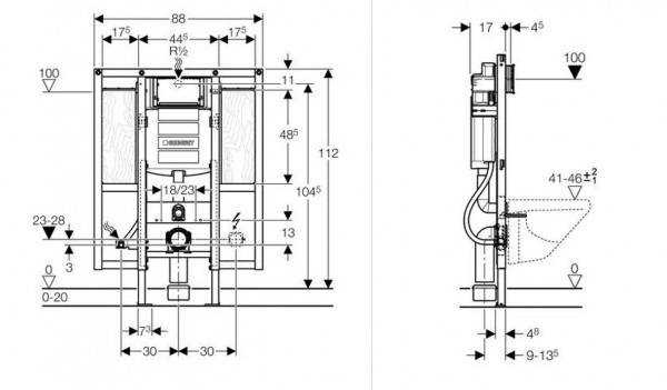
Geberit Bâti-support duofix sigma PMR avec renfort de barre Geberit (111.375.00.5)

  • Référence du produit: 111.375.00.5
  • EAN: 4025416753100
  • Marque: Manufacturer 5
Garantie du produit: 2 ans
689
90
TTC
712
76
Prix public conseillé
Le prix public conseillé (PPC) est un prix de revente conseillé par un fabricant à ses distributeurs.
Lorsqu’il s’agit d’un pack multi-marques, c’est alors la somme des PPC de ses composants.
( 3.21% d'économie)
Rupture de stock
Expédié habituellement sous 31 jours
Quantité:

Utilisation

  • Pour la construction sur mur porteur ou cloison renforcée
  • Pour montage dans parois en applique à hauteur de local ou partielle 
  • Pour montage sur parois d'installation à hauteur du local 
  • Pour montage dans des parois Geberit Duofix à hauteur de local ou partielle 
  • Pour construction adaptée aux handicapés 
  • Pour WC suspendus avec dimensions de raccordement selon EN 33:2011 
  • Pour WC suspendus avec grande saillie jusqu'à 70 cm 
  • Pour fixer des barres de relevage 
  • Pour rinçage simple touche, double touche ou interrompable
  • Pour hauteur de chape 0–20 cm

Caractéristiques 

  • Cadre préparé pour supports des céramiques de WC avec petite surface d'appui 
  • Hauteur de montage du WC réglable dans la phase du gros-œuvre, 41–46 cm 
  • Pieds supports galvanisés, réglables 0–20 cm 
  • Pieds supports antidérapants
  • Plaques de pied rotatives, profondeur conçue pour l'installation sur profilés en U UW 50 et UW 75 et rails pour système Geberit Duofix 
  • Coude de raccordement pour différentes positions en profondeur, à monter sans outils, plage de réglage 45 mm 
  • Fixation du coude de raccordement avec isolation phonique 
  • Réservoir à encastrer avec déclenchement frontal, isolé contre la condensation 
  • Post-rinçage immédiat possible avec réglage d'usine
  • Travaux de montage et d'entretien sur les réservoirs à encastrer sans outils 
  • Arrivée d'eau à l'arrière ou par le haut au centre 
  • Le boîtier de réservation pour trappe de visite protège de l'humidité et de la poussière 
  • Boîtier de réservation pour trappe de visite pouvant être sectionné 
  • Plaque de montage en bois de placage, collage résistant à l'eau 
  • Équipé d'un fourreau destiné à la conduite d'alimentation pour raccordement des WC lavants Geberit AquaClean
Caractéristiques techniques du produit
  • Matière:Bois
  • Poids (kg):17.5
  • Type de bâti:Mur
  • Marque bâti:Geberit
  • Nombre de composants:1
Ecrire un commentaire
Avis *
Les champs marqués d'un astérisque (*) sont obligatoires.
689
90
TTC
712
76
Prix public conseillé
Le prix public conseillé (PPC) est un prix de revente conseillé par un fabricant à ses distributeurs.
Lorsqu’il s’agit d’un pack multi-marques, c’est alors la somme des PPC de ses composants.

(3.21% d'économie)
Dont 0.07 d' éco-part. DEEE
Rupture de stock
Expédié habituellement sous 31 jours
Quantité:
Paiement sécurisé
Questions les plus fréquentes sur ce produit

Quels sont les plaques de commande compatibles avec le bâti-support Geberit Duofix Sigma PMR ?

Ce bâti support est compatible avec les plaques de commande Geberit des séries Sigma.

Double touche :
Sigma01, Sigma20, SIgma50, Sigma60, Sigma70, Bolero

Déclenchement infrarouge :
Sigma80, Sigma10

Simple touche :
Sigma10, Mambo, Tango

Avis clients
Cecilia P.
05/01/2026

Super ! SAV réactif à l écoute et qui a trouver une solution rapide et très satisfaisante ! Merci à eux

Marc D.
20/01/2026

La livraison de la porte de douche et très bien protégé sur palette. Et un superbe SAV car il me manquait une roulette. La réaction du SAV était très efficace livraison de la roulette est bien arrivé rapidement. Merci à vous

Reinette P.
12/01/2026

Super site, produits de très bonne qualité, livraison soignée et service client réactif!

Michel L.
24/01/2026

Prix interessants par rapport a la concurrence. Le service de chat en ligne a tres bien répondu a mes question sur un produit SAT

4.5/5